105-Unit Project Under Construction Next to the Berks El Station

It was back in August of 2020 that we told you about plans for a large mixed use building right next to the Berks El Station at 1900 North Front Street. Back then, an old bar stood on the corner and an unflattering abandoned bank along with a surface parking lot occupied the north end of the site.
The bar and bank were demolished over the last year or so and we’ve been waiting for more action on the site since then. Well, it looks like things are finally moving forward.


The parcel has been completely cleared, construction fencing surrounds the property, and heavy machinery is actively working on the site. Construction seems like it’s in the beginning phases here and we imagine it will ramp up in the coming weeks and months. There’s a basement planned on the south end of the site, so we should see digging along the Berks Street corner in the near future.
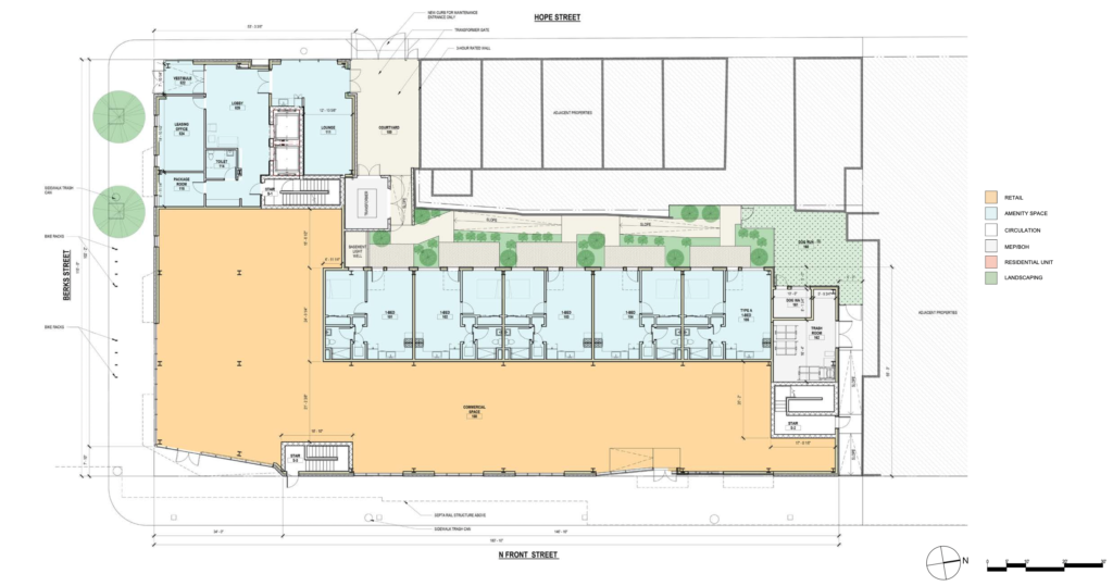
As a reminder, this project will entail a 6-story, 83,760 square foot building with 105 residential units, 6,676 square feet of ground floor commercial space, 36 bicycle stalls, a green roof, and a roof deck.




The development team is utilizing the green roof bonus and the mixed-income housing bonus. When we originally reported on this project, we stated that the developer planned on including 21 affordable units within the building rather than contributing to the low income housing trust fund. We have not heard otherwise since then.
Commercial space will occupy almost all of the Front Street ground floor frontage and more than half of the Berks Street frontage. The commercial entrance will be located on the northwest corner of Front and Berks Street and the primary residential entrance will be located on Berks Street. Five garden units will be located off of Hope Street.
We’re very happy to see this transit-oriented development project moving forward. This project seems like a win win win win for everyone. New residential housing supply is being added in a market that has seen rents and home prices soar over the last decade, housing is being built directly next to a Market-Frankford Line station, there’s an affordability component to the project, and a large commercial space is being added to the neighborhood. What else could you ask for here?
How do you feel about this project? What kind of business would you like to see open in the retail space?