105 Units + Retail Proposed at Front and Berks in Kensington

In August of 2019, developers acquired the 12,005 CMX-2.5 zoned site at 1904-22 N. Front St. from the Norris Square Economic Development Corporation for $2.1 million. The parcel currently holds a low-rise building that was formerly a bank and surface parking lot. The development team proceeded to acquire the adjacent corner parcel at 1900-02 N. Front St. in March of this year for $850,000.
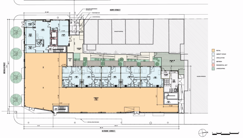
By-right plans are now moving forward to consolidate the properties and construct a 6-story, 62-foot tall, 84,134 square foot building with 105 residential units, 6,676 square feet of retail space, 36 bicycle spots, and a green roof. The development will include a gym, a garden courtyard, a dog run, and a roof deck. The commercial entrance will be located on the northwest corner of Front and Berks St. and the primary residential entrance will be located on Berks St. Five garden units will be located off of Hope St. No automobile parking spaces will be provided. The development team hopes to break ground in February or March of 2021 and plans for a 22 month construction period.


The development team is providing 21 on-site affordable housing units within this development. This equates to 20% of the total units. As we have written about before, many developers around the city have chosen to contribute to the housing trust fund in exchange for density bonuses rather than placing the affordable units on site. The proposed on-site affordable units at 1900 N. Front St. should be seen as a major win for the neighborhood.
We think this is a fantastic project. This is the type of density and parking ratio that is needed along the Market Frankford Line. We imagine a large portion of the future residents of this building will ride bikes, take the train, and will not own cars. This project is literally across the street from the entrance to the Berks El Station. There could not be a better place for residential density.
How do you feel about this project?