107-Unit, Mixed-Use Building Breaks Ground in Fishtown on Frankford Avenue

One of the largest undeveloped parcels in Fishtown has sat unchanged along the neighborhood’s main commercial corridor as the properties surrounding it have been developed into new homes and commercial spaces. 1120 Frankford Avenue, until recently, was an unpaved parking lot situated just north of Barcade and just south of Girard Avenue.
Although a lot of the action on Frankford Avenue in Fishtown is north of Girard, the pocket between Girard Avenue and Delaware Avenue is prime for revitalization. There are already a handful of restaurants, bars, and other businesses along this stretch with more planned in the future. Two large projects are already underway on Frankford Avenue on the block just south of Girard. The 59-unit redevelopment of a historic Frank Furness bank is making great progress on the corner and a 12-unit micro hotel is nearing completion at 1144 Frankford.




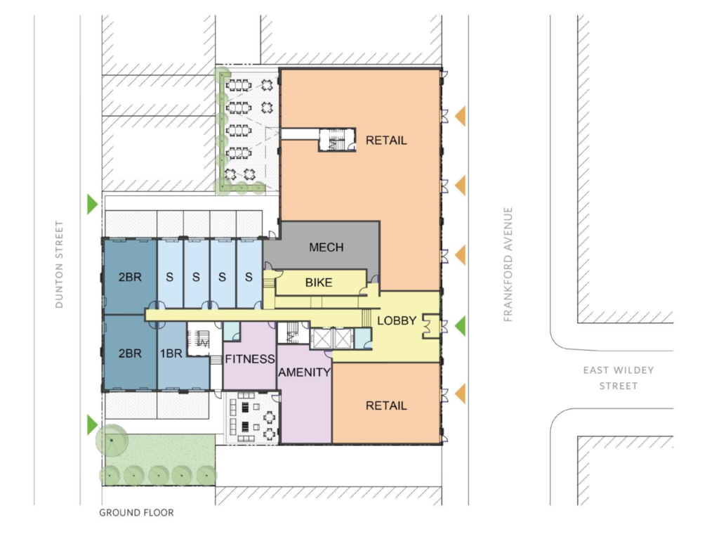
And now, it looks like the doughnut hole in the middle of the block will finally get filled in as 1120 Frankford Avenue has broken ground. Heavy machinery is on site and excavation has begun. Since we last reported on this project, the unit count has been dropped from 150 to 107 as indicated in construction permits. The building will be five stories tall and will include two ground floor commercial spaces, a roof deck, a green roof, and 38 bicycle stalls.
The red brick facade seems to be inspired by some of the neighborhood’s old industrial buildings. Large storefront windows will grace the ground level along Frankford Avenue. The larger of the tow commercial spaces will include outdoor seating in the rear.
We’re very excited to see this project moving forward and for a ton of energy to be injected into this block in the near future. It’s also great to see a 100+ unit project without any automobile parking being built so close to the Girard subway station.
How do you feel about this project? What kind of business would you like to see open in the commercial spaces?