108-Unit, Mixed-Use Building Planned in Olde Kensington

Back before 2018, the parcel between 2nd Street, American Street, Thompson Street, and Master Street in Olde Kensington was just a giant vacant lot. However, the property had great CMX-3 zoning and was surrounded by new development, so we knew it would eventually be built on.
In late 2018, ground was broken on a 3-building, 198-unit, mixed-use building at the property. The project utilized modular construction, so it was completed rather quickly. The complex, called Dwell 2nd Street, is now fully activated with residential and commercial tenants. Deli @ Dwell, a deli that sells beer and other adult beverages, occupies the commercial space on the southwest corner of the site and has a large outdoor seating area. Since Dwell 2nd Street was completed, this pocket of Philadelphia has seen a ton of other large scale construction projects get underway and it looks like another is on the horizon.



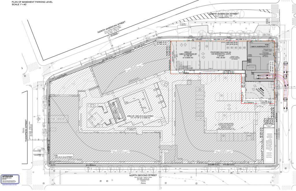
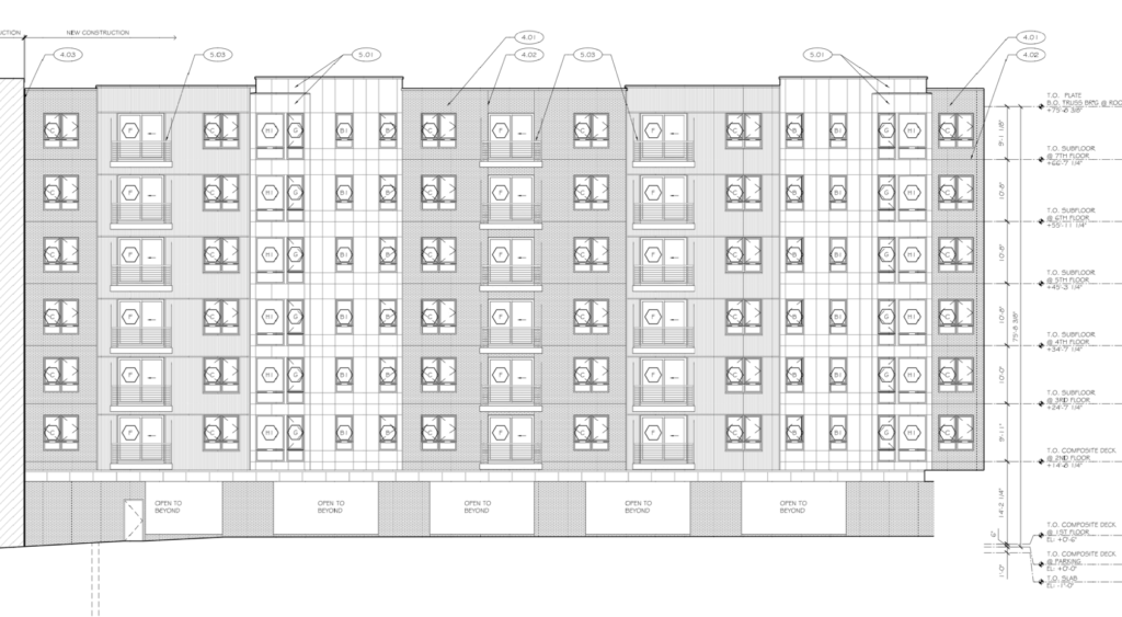
You may have noticed that the northwest corner of the Dwell site was never developed. It’s currently just a small surface parking lot and a fenced in grass field. That should be changing soon. A zoning permit was issued earlier this week for a 7-story building with 108 residential units, a 2,588 square foot commercial space, and a 27 car parking garage on the corner. The commercial space will be located on the corner of American and Master Street while a curb cut for the parking garage will be located on American Street.
The residential units will be tied into the building to the south. No new residential entrance or lobby is denoted on the new plans. It looks like the new parking area will be tied into the existing parking garage from Phase 1 as well.
We imagine that the aesthetics of this new building will match the existing Dwell buildings and will likely be built with modular construction as well. So, once this gets started, it should rise quickly.
We’re definitely happy to see this prime corner activated and for a big gap in the American Street corridor to be filled. The corner commercial space and the additional residents this project will attract should help further energize this booming section of the city.
How do you feel about this project? Are you happy to see this corner get developed?