12-Story, 382-Unit + Retail Project to Replace Strip Mall at 5th & Spring Garden


Back in the mid 60’s, a low-rise, suburban-style strip mall was created by the Redevelopment Authority through its East Poplar Urban Renewal Plan. The complex, which sits between 5th St., 6th St. and Spring Garden, was originally the home to the Fifth Street Wholesale Distribution Association. Over time, the structures morphed into a more traditional retail strip mall. The strip mall has recently been the home to a dollar store, a beer distributor, a pet store, a Subway sandwich shop, and a small gym within a sea of surface parking. Some of these stores are still operating

We’ve always hated this stretch of Spring Garden and have hoped to see it redeveloped. As other major residential and commercial projects have taken off nearby, the strip mall has seemed more and more out of place.
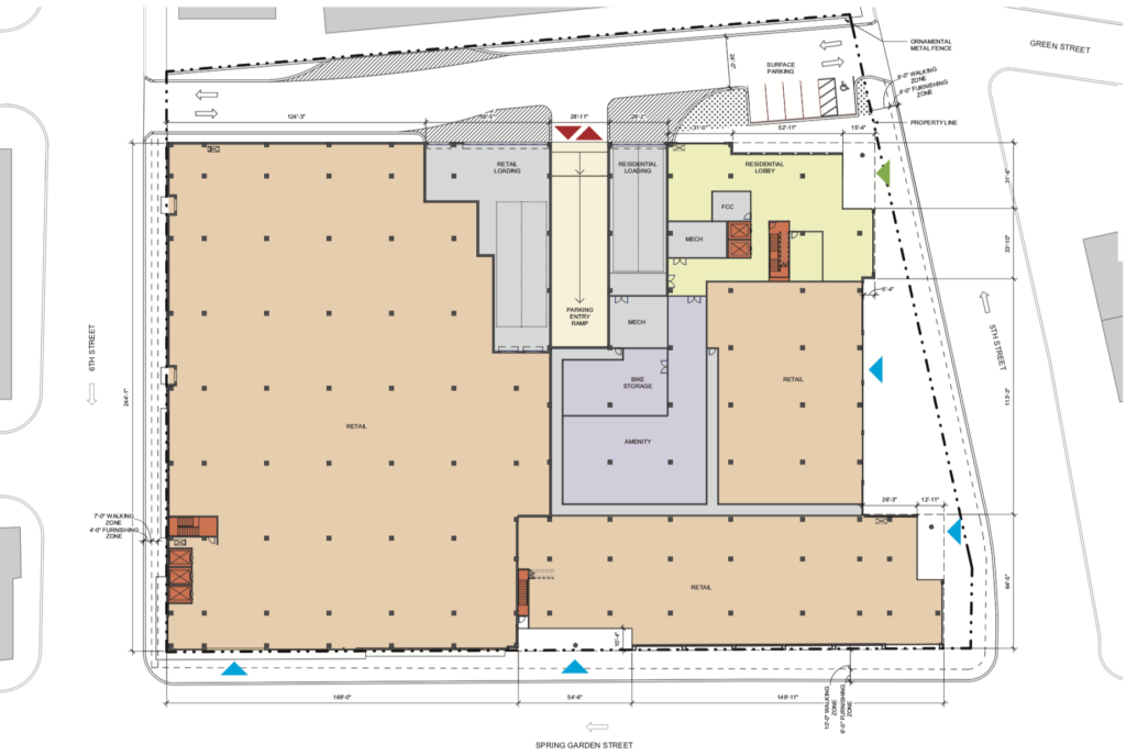
It looks like we may be getting our wish. Within the last two days, permits have been pulled to consolidate the 11 parcels that make up the strip mall and parking lots and to build a 12-story structure with 382 residential units, ground floor retail, 211 car parking spots, and 135 bike spaces. No zoning variances are needed as these parcels are zoned CMX-3.
We have not seen any renderings for the project yet, but anticipate getting ahold of them in the near future before the project appears before the Civic Design Review (CDR) for feedback.
Public records do not yet show any of the 11 parcels, which are under multiple different ownership groups, changing hands recently. We imagine a major player in the Philadelphia real estate scene has a deal in place to acquire all of the properties. The transaction could have already taken place and the records may just not be up to date. More information should be made available in the near future.
Although we think this is a ton of parking for a location that is only a few blocks from the Market Frankford Line, we are incredibly happy to see the strip mall go away and for residential density to be added to this transit-accesible site. How do you feel about this project?
UPDATE 2/19/2020: Renderings are now available for the project:




