142-Unit Project Under Construction in East Falls

It’s been a long road with many iterations for the project at 4300-26 Ridge Avenue in East Falls. A variety of plans have been proposed for the 70,000 square foot, CMX-3 site at the corner of Ridge Avenue and Calumet Street over the last 15 years. We’re happy to say that the site is finally well under construction and making its way towards the finish line.
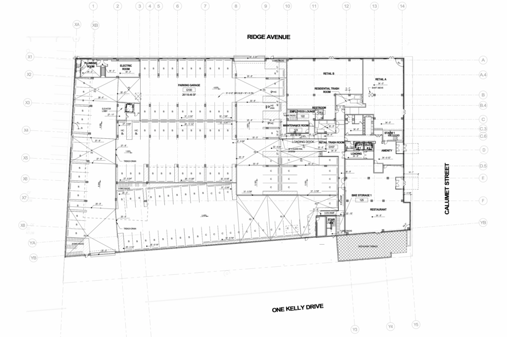
When completed, the project will entail a 5-story building with 142 residential units, roughly 10,000 square feet of ground floor commercial space, 117 automobile parking spots, and 56 bicycle stalls.





The renderings depict large ground floor windows with orange and black cladding on the upper floors. The parking entrance will be located in the middle of the building along Ridge Avenue. The commercial space will wrap around the base of the Calumet Street side of the building including the river frontage of the structure. Plans also call for a green roof, roof deck, outdoor dog run, and a pool.
We’re excited to see this long vacant corner activated and for 142 homes to be occupied so close to the river trail and the regional rail station. We’re hoping that some high quality commercial tenants rent the retail spaces to help further energize East Falls.
What do you think about this project? What kind of businesses would you like to see occupy the commercial spaces?