152-Unit, Mixed-Use Building Proposed Next to the Berks El Station in Kensington

Development momentum surrounding the Berks El Station has not slowed down. Take a walk from Front Street to 2nd Street along Berks and you’ll see a 28-unit building that is nearly completed and has started pre-leasing, another 28-unit building that is also nearing completion, and a 30-unit adaptive reuse project underway. Another 45 units are topped out just south of Berks Street on Howard Street. That’s just the tip of the iceberg as demolition has already commenced in anticipation of a 70-unit, mixed-use building just south of Berks Street on Front Street. A 105-unit, mixed use building is also planned on the northwest corner of Front and Berks. Another 46-units are planned at the site of a former bank just north of the station and 204-units will replace a surface parking lot just south of the station. Believe it or not, there are a bunch more projects that have been recently completed, are under construction, and that are in the pipeline right near the Berks El Station.
One lot that has continued to sit vacant on Berks Street is 150-66 West Berks Street. Back only a few years ago, a cool low rise warehouse stood on the site. It was later demolished and 27 townhouses, 6 additional residential units, and two small retail spaces were supposed to take its place. We always thought that plan was a severe underbuild of the parcel and thankfully, it looks like the owners now feel the same way.



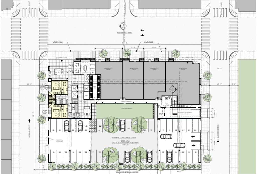
The new plans call for a 7-story, 150,497 square foot building with 152 residential units, 42 automobile parking spots, 77 bicycle stalls, and 7,272 square feet of commercial space. The commercial space is currently configured into 4 separate large storefronts stretching west from Mascher Street along Berks. The parking entrance and exit will be located along Mascher Street. Many of the residential units will have private terraces and a large terrace will be provided on the top floor for all building residents to use. A gym for the residents is also included in the plan.
From the renderings, the building’s design looks quite attractive. The facade will primarily be wrapped in grey brick with cast concrete and various other siding accents. The storefront and residential lobby windows are large across the whole ground level on Berks Street, which will provide great visibility for the commercial tenants and eyes on the street for passerby. Large windows will also wrap the corners of the building on the upper floors.


Although this proposal seems like a perfect use for the lot, the project needs a variance since the 31,661 square foot lot is zoned Industrial Commercial Mixed-Use (ICMX). The development team is facing refusals for residential use, height, and for the number of loading bays. Berks Street surrounding the El has clearly transformed into a residential mixed-use corridor. The ICMX zoning classification makes no sense for this lot and we think this project would blend in with the neighborhood much better than an industrial development here.
How do you feel about this project? Should a zoning variance be granted for the plan? How do you feel about all of the development happening on West Berks Street?
