160 Units + Retail Proposal for Infamous Lot at 27th & Girard in Brewerytown

It seems like we’re seeing 100+ unit proposals all across the city these days. This is proof that urbanization is still in full force and developers believe this long-term trend will continue. Philadelphia will emerge stronger after this international health crisis lifts and people will continue to want to live in this great city at the center of arts, culture, dining, and business.
We’ve seen countless large projects proposed recently on vacant lots and under utilized properties. One of the most infamous vacant lots in the city sits in Brewerytown between 27th and Taney at 2630 Girard Avenue. This lot has been blighted for as long as we can remember and recently attracted a huge gathering of Frank Furness fans to congregate. All jokes aside, this 54,629 square foot CMX-3 parcel is long overdue for development.


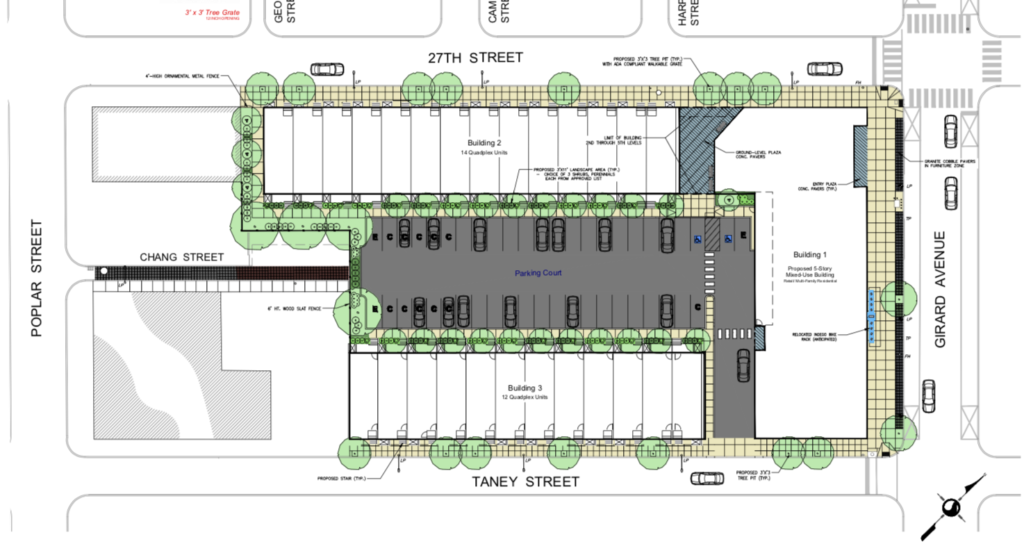
Developers are planning to build 3 structures on the site that will include 160 residential units, 9,306 SF of retail space, 46 car parking spots, and 56 bike spaces. There will be 120 one-bedroom units and 40 two-bedroom units.
- Building 1 will front Girard Avenue and will consist of a 56,064 SF mixed-use building with 56 units over retail
- Building 2 will front 27th St. and will consist of 14 quadplexes which total 56 units
- Building 3 will front Taney St. and will consist of 12 quadplexes which total 48 units

We think the design will compliment the 14-unit + retail project nearing completion across Taney St. and the 108-unit + retail project that just broke ground at Poplar and Taney. We love to see this kind of residential density added along the Girard Avenue commercial corridor in Brewerytown. Some really cool businesses call Girard Avenue home, and the additional residents in the neighborhood should help these businesses thrive.
How do you feel about this project? Will you be sad to see this humungous vacant lot get developed?