171-Unit Project with Lidl Supermarket Breaks Ground at Broad & Girard Former CVS Site

Back in April of 2021, we told you that a zoning permit for a 160-unit building was issued for the southwest corner of Broad Street and Girard Avenue, which at the time was home to a CVS. A couple of months later, project renderings and details were released in anticipation of the development team’s meeting with the Civic Design Review (CDR). Those plans called for 201 residential units with commercial space occupying almost all of the ground level along with 44 underground parking spaces.
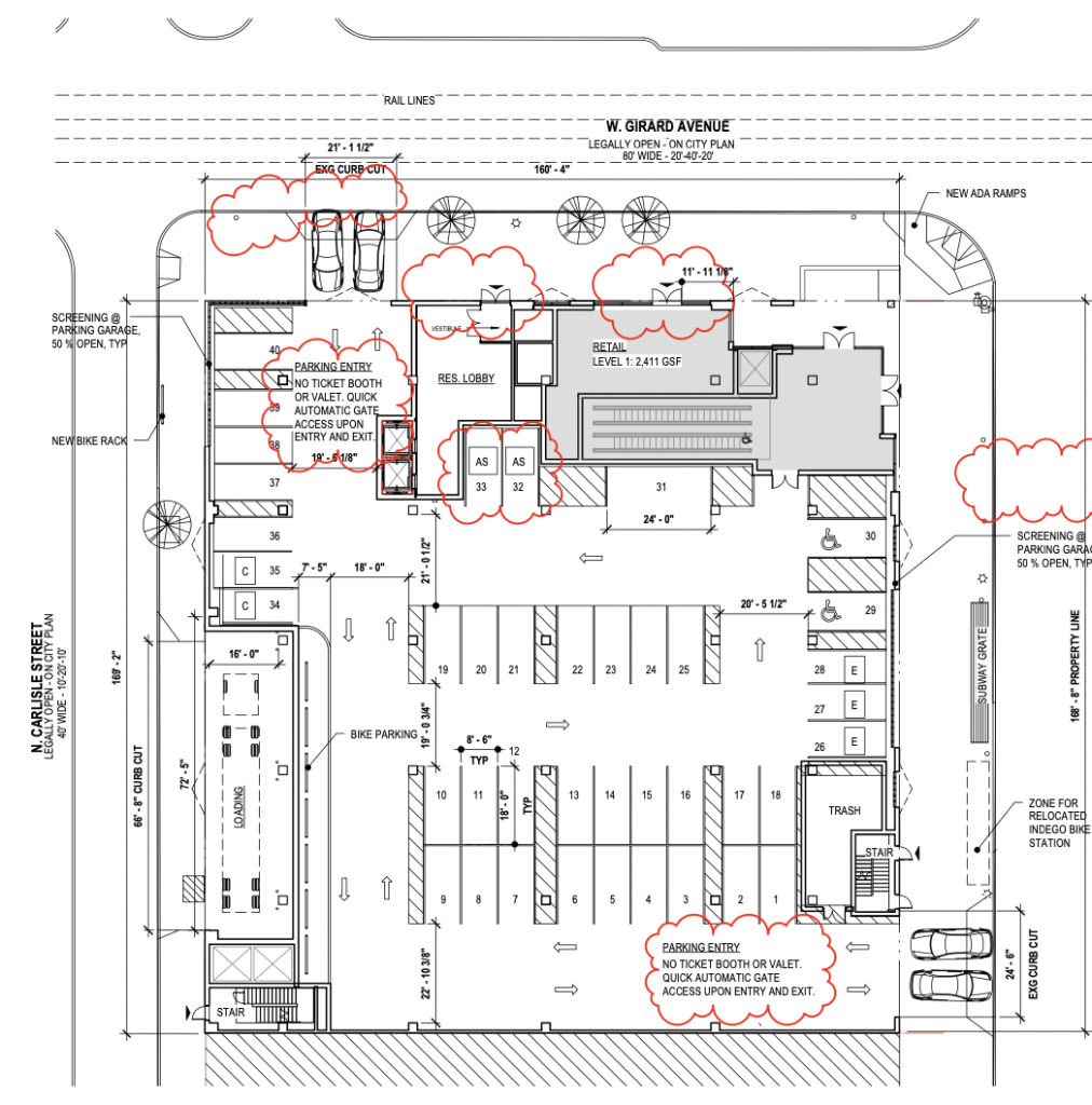
Since we last reported on the project, the former CVS building was demolished. Then a zoning permit was issued in August and an amended construction permit was issued in October. The new permits show that the plan has shifted once again. The new plan calls for a 7-story, 84 foot tall building with 171 residential units, and 40 parking spaces. The parking has been moved from underground to the ground level. Most of the ground level commercial space has been eliminated and nearly 30,000 square feet of commercial space has been added on the 2nd floor. There will be an entrance for the main commercial space located on the corner of Broad and Girard that will have escalators and an elevator leading to the 2nd floor. A smaller commercial space will be located just off the corner along Girard Avenue.



It seems like these are the final plans as the development team officially broke ground earlier this week and heavy machinery was digging on site when we stopped by today. Hightop Development, who is leading the project, also announced some exciting news at the groundbreaking event. Lidl grocery store will be the commercial tenant.
We’re thrilled to hear that this intersection is getting a full grocery store and imagine nearby neighbors will be happy as well. It’s also great to see 171 new homes being added right next to the Girard Station on the Broad Street Line. When this project is completed in the next couple of years, this corner is going to be much more lively than it was when the CVS was there.
We imagine that the design of the project will remain generally unchanged. However, the zoning permit shows that one of the ground level commercial storefront windows along Broad Street will be replaced by a parking screen. Although not ideal, we think this is a great tradeoff for having a grocery store at this prime corner.
How do you feel about this project and the news that Lidl will be the commercial tenant?