179 Units + Retail Proposed on American St. in Kensington


The transformation of N. American St. in Kensington from an industrial center to a mixed-use corridor will take another step forward if a new proposal at 1705 N. American St. comes to fruition. 1705 N. American St. is a 38,198 square foot Industrial Commercial Mixed-Use (ICMX) zoned property that currently is the location of Drexel Foods, a chicken and beef product provider.

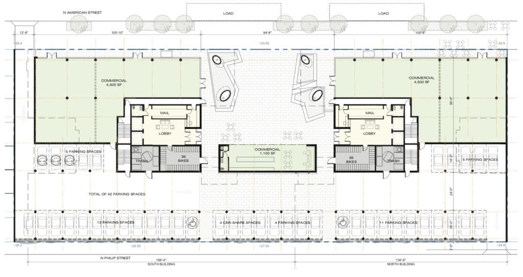
Developers are proposing to build a 73 foot tall, 182,000 square foot structure with 179 residential units, 9,900 square feet of commercial space, 42 automobile parking spots, and 100 bike spaces. The residential units will include 61 studios, 84 one bedroom units, 29 two bedroom units, and 5 three bedroom units. The plans call for 3 commercial spaces. One of the commercial units is a boutique space surrounded by a public landscaped courtyard, which we think could be really cool and perfect for a cafe. There will also be a roof deck and a gym in the building.
The facade will be constructed of different tones of gray fiber cement panels, concrete, and aluminum that is meant to look like wood. The project team will be incorporating drought resistant plants that do not need to be actively watered into the landscaping. They will also include other green features such as low flow fixtures, high efficiency HVAC, highly reflective roofing, and energy recovery units.



Plans were released for the project when the development team met with the South Kensington Community Partners neighborhood group in anticipation of appearing before the Civic Design Review (CDR). As this property is zoned ICMX, it will need a variance to proceed. However, if the American Street Overlay District bill moves forward, some iteration of this project may be able to proceed by-right.
We think that the renderings for this project look sleek and that 179 homes and 3 retail spaces seem like an appropriate use for this property. We look forward to the plans getting approved, the project moving forward, and to N. American St. becoming more inviting to nearby neighbors. Scroll through the Instagram photos below for more renderings. How do you feel about this project?