18-Story, 198-Unit Tower Planned at 11th and Walnut

It was back in May of 2019 that we told you that the Wendy’s at 11th and Walnut was going to be demolished. We also mentioned that the stately building at 1105 Walnut would also be demolished and that parcel would likely be combined with the Wendy’s property for the development of a new structure. Then, in the summer of 2019, we got additional details about the project. The owners planned on building a 23-story tower with 111 residential units that would be occupied by Sonder, a short-term rental operator.

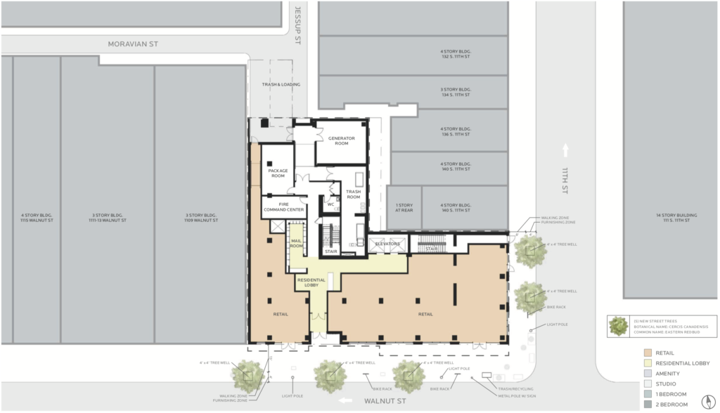
Well, it looks like plans have changed. The development team now plans on including a third property at 1107 Walnut in the project. That building will also be demolished to make way for the new tower. The new plans call for an 18-story building with 198 residential units, 68 bicycle stalls, and 4,420 square feet of ground floor commercial space between two storefronts. 34 off site parking spaces will be provided at 1201 Walnut Street to satisfy parking requirements. The residential units will be a mix of studios, one bedroom apartments, and two bedroom apartments. The fourth floor will be reserved for building amenities and will include an outdoor terrace. The tip of the building will rise just under 200 feet.



The base of the building will be clad in a grey and black brick while the top of the building’s facade will be constructed of metal and louver panels. The design of the building gives the appearance of a tower sitting on top of a 4-story brick pedestal.
We love to see additional density added within Center City. However, we may have preferred the old plan which was taller and did not require the demolition of the building at 1107 Walnut. We would have liked to have seen the buildings at 1105 and 1107 Walnut preserved and potentially incorporated into the plans, but understand that is a more difficult feat than demolishing everything and building from the ground up.
No construction permits have been issued to date, but this project can proceed by-right. The development team will appear before the Civic Design Review (CDR) on October 5th for non-binding feedback. Hopefully, this project moves forward quickly and this prime corner is reactivated.
What kind of businesses would you like to see open on this corner? Possibly another Wendy’s?

