32-Unit Building to Replace Church Near the Berks El Station

Yesterday, we told you about a project under the El near the Girard Station. Today, we have one for you just up Front Street near the Berks Station. As we’ve told you many times before, there’s a ton happening surrounding the Berks Station with multiple new buildings that have been recently completed, a bunch more units under construction, and even more in the pipeline.
The newest project is happening north of the 105-unit project we told you about back in May of 2020. By the way, demolition is complete on that site and it looks like the development team may be getting ready to break ground as we saw them installing electric line protectors surrounding the site last week. Anyway, back on topic…
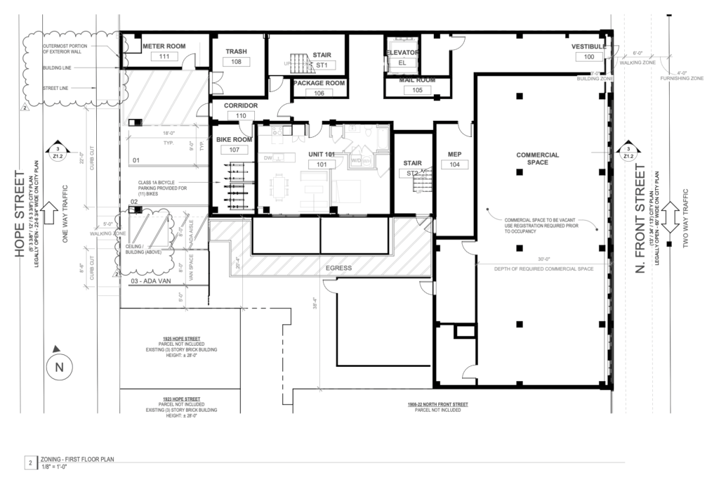
Zoning permits were issued today for a 5-story, 30,525 square foot building with 32 residential units, 2,307 square feet of ground floor commercial space, 3 car parking spots, and 11 bicycle stalls on the 8,144 square foot CMX-2.5 zoned site at 1924-32 North Front Street. The project is utilizing the green roof bonus for an additional 2 units although they could have used the bonus for an additional 7.



There are currently a collection of 2 and 3-story orange stucco buildings on the property that were most recently used by the Iglesia Pentecostal Manantial de Agua Viva church. The buildings sold in December of 2021 for roughly $1.3 million and it looks like they will now be demolished.
Project renderings depict a structure with a brick facade fronting the rail tracks. The car parking spots will be accessed via Hope Street. The commercial space will take up nearly the entire Front Street frontage of the building.
We’re happy to see another 32 homes planned so close to the El station and look forward to seeing what kind of business opens up shop in the commercial space. The area surrounding the Berks Station is really developing into a legitimate commercial district with a bunch of new storefronts recently added and more coming down the line. All of the residents in the new buildings will surely continue to fuel new businesses opening in the area.
How do you feel about this project? What kind of retail businesses are needed in this section of Philadelphia?