41-Unit Project Planned Next to Kensington Community Food Co-op

Just four or five years ago, new commercial developments north of York Street along the Frankford Avenue corridor in Kensington were few and far between. All that has changed and now there are barely any lots available for development between York Street and Lehigh Avenue on this stretch.
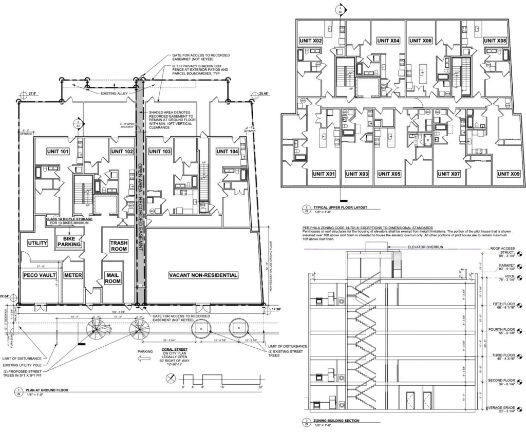
One property on the north side of this corridor that we did not think would be developed any time soon is the 9,354 square foot, CMX-2.5 zoned surface parking lot next to the Kensington Community Food Co-op at 2654-64 Coral Street. However, zoning permits were issued for the site just yesterday.
Developers are planning a 5-story, 55 foot tall building with 41 residential units, ground floor commercial space, 13 bicycle stalls, a green roof, and a roof deck. The project is utilizing the green roof bonus for additional residential density.


We do not have renderings of the project yet, but it looks like the commercial space will be located on the north side of the building. Interestingly, plans show an easement running through the middle of the site. So, there will be a 10 foot tall open air alley that bisect the first floor.
It’s great to see plans in place to turn a surface parking lot into homes for people in such a desirable section of Philadelphia. We imagine that the additional residents next door will help increase sales at the Kensington Community Food Co-op and that tenants will be attracted to the new building because of the grocery store next door. We’re also happy to see another development planned on the north side of the Frankford Avenue corridor within the 19125 zip code. Now, if only that Woods Brothers project could break ground…
How do you feel about this project? What kind of business would you like to see open in the commercial space next to the co-op?