47-Unit Project Under Construction Near Front and Girard

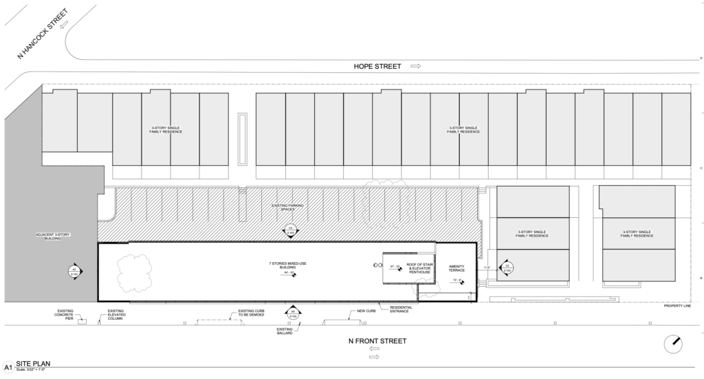
Another day, another project to tell you about near a subway station in Philadelphia. This one is just south of Girard Avenue at 1108 North Front Street right on the border of Fishtown and Northern Liberties.
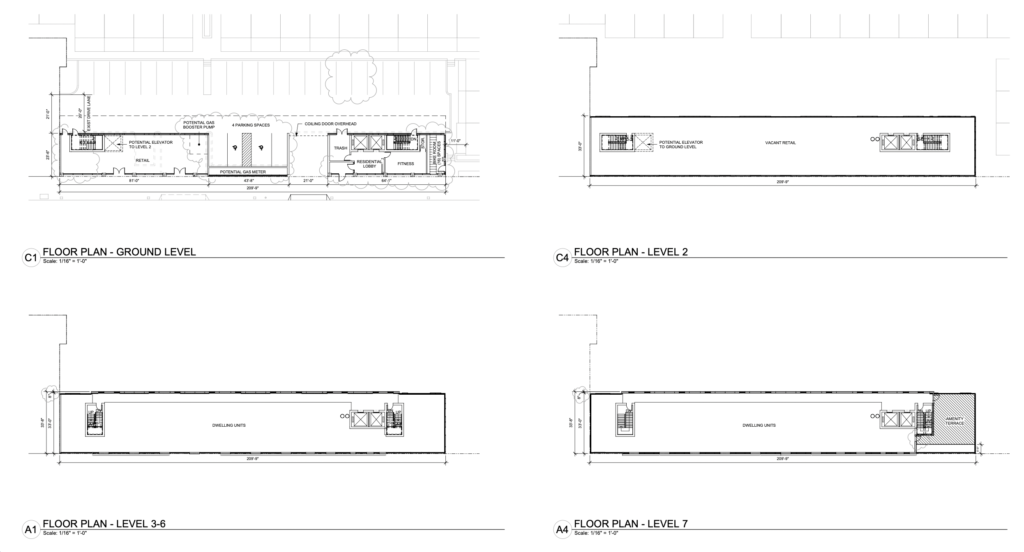
Developers recently broke ground on a project that entails a 7-story building with 47 residential units, 8,520 square feet of commercial space on floors one and two, 27 automobile parking spaces, and 16 bicycle stalls.





It’s great to see so much commercial space included in this project. Plans call for 1,600 square feet of retail space on the first floor. The second floor will hold another 6,920 square feet of commercial space that would be great for a retail or office user.
The project is being built on part of a surface parking lot that backs up to a collection of newer construction townhomes. 23 of the project’s 27 parking spaces are existing spaces. The project is only eliminating a section of the parking lot that held some strips of grass and 5 surface parking spaces. Although those 5 parking spaces are going away, 4 spaces are being added on the ground level of the new structure.
We’re thrilled to see this project proceed as we didn’t think we’d ever see this surface parking lot developed. The project will not only create 47 new homes less than a block from the subway station, but it will help improve the Front Street commercial corridor south of Girard.
What do you think about this project? What kind of business would you like to see open in the commercial space?