49 Unit Mixed-Use Building Replacing Decimated Old Building in the Gayborhood

The building at 1208 Chestnut St. once stood proudly at 8 stories tall and housed the offices and retail storefront of the Hamilton and Diesinger silver company. In 1942, a fire decimated the building and the top 5 floors were removed. The second floor has remained stucco’d over with only the third floor giving a glimpse of the building’s former beauty. The clothing retailer Rainbow last occupied the building, but the storefront has been vacant for several years now.
Although we love old architecture, this building looks like it is beyond repair and is a blight to the block. Most passersby likely do not even take a glimpse at the 3rd floor nor realize the building’s history.
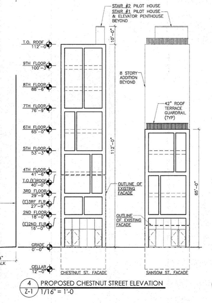
In 2017, a developer purchased the building for $2.7 million. In 2018, permits were pulled for a 52 unit mixed-use building. However, plans have changed slightly. The developer may have wanted to avoid going through the Civic Design Review (CDR) process as he reduced the residential count to below the 50 unit threshold. In the beginning of May, demolition permits were pulled on the property. In April, new construction permits were issued for a 49 residential unit building with 2 retail storefronts on the 5,875 square foot CMX-5 zoned parcel. The tower will rise 9 floors and 112 feet. This project is not maximizing the allowable units or height allowed in the CMX-5 zoning classification, which we find unfortunate.

Although we would have liked to have seen a taller, denser project at this location, we are happy to see this development proceed. This stretch of Chestnut St. and Sansom St. (which the property backs up to) could use some additional quality commercial spaces. The 49 residential units that the project will bring to market will also help house Philadelphia’s increasing population. There is not a more central location than this, and we think it will attract tenants easily. Speaking of location, this project is blocks away from both the Broad Street Line and the Market-Frankford Line. We appreciate the fact that the developer is not including parking in the building. 18 parking off-site parking spots will be available to residents. We imagine most people living in the building will be able to walk or take the train to work. How do you feel about this project? Will you miss the old building? What kind of business would you like to see open in the retail space?