60-Unit, Mixed-Use Building Planned on Front Street in Kensington

We’ve told you about several projects surrounding the York-Dauphin El Station that amount to over 700 units that are under construction. Check out our map page for more details about those projects. If you think that 700 new units is a lot for the area, get ready for some more. The February Civic Design Review (CDR) agenda just dropped and there are two significantly sized projects planned near the York-Dauphin Station.
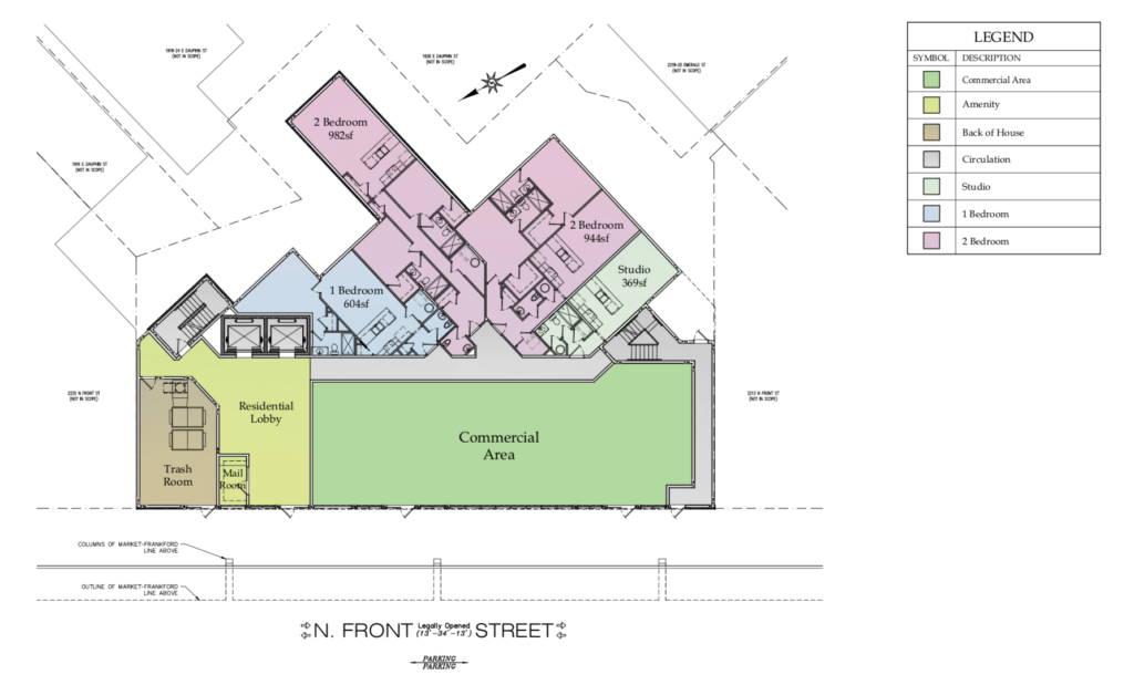
First on the list is just south of Dauphin Street under the El at 2213-33 North Front Street. Several existing structures were demolished over the last 4 years to create one large site. Developers are planning a 7-story, 49,245 square foot building with 60 residential units, 6,500 square feet of commercial space and 20 bicycle stalls on the 10,646 square foot lot.




The project will utilize the fresh food market bonus and the moderate income bonus for additional height and residential density.
The Civic Design Review presentation also indicates that there will be a second phase of the development that will include two 5-story wings with 17 additional residential units added.
It’s great to see more homes added so close to the subway station and for the Front Street commercial corridor to continue to develop. Only five or six years ago, there was not much retail activity north of Girard under the El. Now, the thoroughfare is the home to some of the best restaurants and attractions in Philadelphia. With all of the homes being built near the York-Dauphin Station we think Front Street and Kensington Avenue will continue to develop as a hub of commercial activity.
How do you feel about this project? Do you think all of the apartments being added in this section of Kensington is sustainable?