63 Units + Retail Proposed for Kensington Under the El

The area surrounding the York-Dauphin Station continues to see project proposals and developments move forward. We’ve told you about a 147-unit proposal on Boston St., a 107-unit proposal on York St., a 106-unit proposal on York St., and a 19-unit mixed-use project that has broken ground on York St.
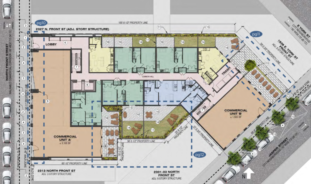
Big things are planned for 2315 N. Front St., a 15,191 square foot CMX-2.5 lot that is adjacent to the 19-unit project mentioned above. The site runs from Front. St. to Jasper St. with a wide frontage on each street.

Developers are planning a 5-story, 63-unit building with two commercial spaces, a green roof, and 22 bike spaces. A 3,100 square foot commercial space will be located on Front St. and a 1,500 square foot storefront will face Jasper St. Both of these retail spaces will have off-street patio seating, which should be attractive to a cafe or restaurant operator.

The renderings depict a handsome project with a red brick and metal panel facade. The building will also be topped by a bronze cornice and will have aluminum clad windows. Cornices are often afterthoughts and forgotten on new construction buildings, so we are happy to see one included here.
The project went through the Civic Design Review (CDR) process earlier this month and was given the green light. No construction permits have been pulled yet, but we expect this project to move forward in the near future as this development is being pursued by-right.

We are extremely excited to see the residential density and new storefronts added along the Front St. corridor. With more than 400 units proposed within a 2-block radius, this section of Philadelphia is bound to undergo a drastic transformation over the next few years. We can see why residents, developers, and retailers are flocking to this area, which is within blocks of the York-Dauphin Station and is located within a Qualified Opportunity Zone (QOZ).
How do you feel about this project? Do you think East Kensington can absorb 400+ new residential units if all of these projects break ground within the next year or two? Do you think the new businesses that open up shop in this area will thrive?
UPDATE: Building permits were issued for this project on 1/22/21