70-Unit, Mixed-Use Building Planned in Old City

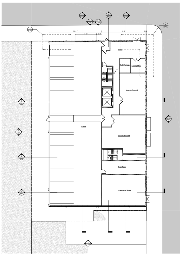
A 6-story, 65 foot tall, 70-unit building with ground floor commercial space and 13 parking spaces is being planned on the 11,678 square foot CMX-3 parcel at 416-24 Vine Street in Old City. The building will be clad in metal and cement fiber board panels with aluminum clad windows and beige retractable balconies accenting the exterior.

The project will replace a one story building that was constructed around 1940 that has most recently been used as the home to a poultry business. The current structure is classified as non-contributing to the Old City Historic District and can be demolished without Historical Commission approval. However, the Historical Commission will need to give the go ahead to the design of the new building. The Historical Commission staff has already recommended approval. The Architectural Committee will vote on final approval on June 22nd.
No permits have been issued for the property to date, but we imagine we will see permits come through in the coming months. What do you think about this project? What kind of business would you like to see occupy the commercial space?



