78-Unit Building to Replace Parking Lot in Kensington

About a month ago, we told you about plans for a 74-unit building that will replace a surface parking lot at Randolph Street and Cecil B. Moore Avenue in South Kensington. Well, it looks like the same development group is planning another surface parking lot replacing building just up the block.
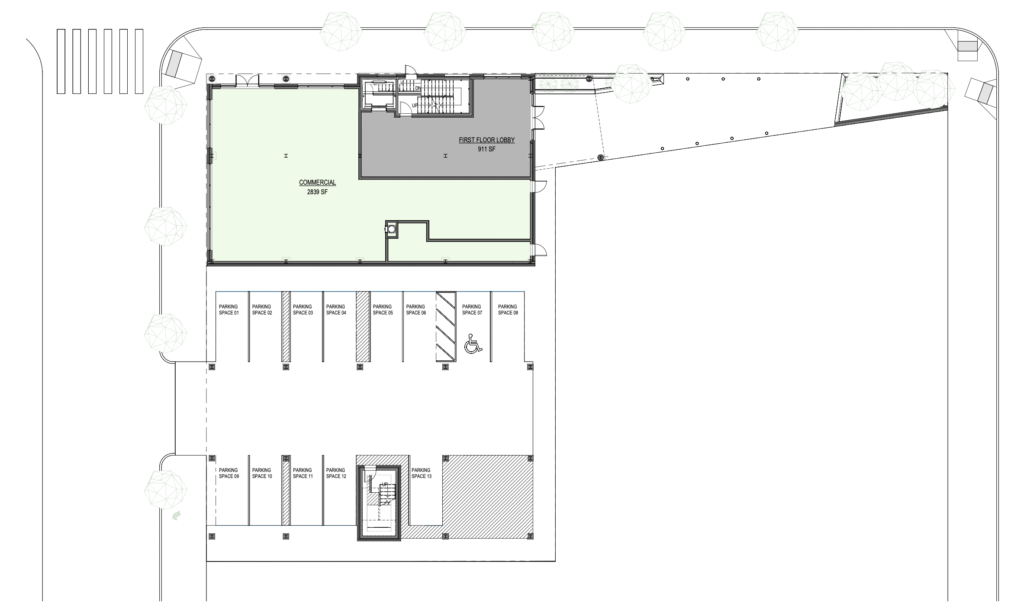
In anticipation of the project team’s meeting with the Civic Design Review (CDR) in December, plans were released for a new 7-story building at 508 West Montgomery Avenue. The project, which is located at the corner of Randolph Street and Montgomery Avenue, will include 78 residential units, roughly 2,800 square feet of ground floor commercial space, 13 automobile parking spots, and a 2,400 square foot outdoor amenity space off of the seventh floor. Although no permits have been issued to date, this project can proceed by-right.





The building’s facade will primarily be clad in metal panels, cement panels, and brick. Some of the residential units will have Juliet balconies. The parking entrance will be located on Randolph Street while the commercial space and residential lobby entrance will be located on Montgomery Avenue. The parcel has a thin strip that extends out to 5th Street. This area will be hardscaped into an outdoor plaza.
It’s great to see plans in place for another surface parking lot to be replaced by a bunch of homes. There are a bunch of other projects underway and in the pipeline in the immediate vicinity of this property. We look forward to seeing how all of the new residents energize this section of South Kensington in the coming years.
How do you feel about this project? What kind of business would you like to see open in the commercial space?