8-Story, 49-Unit Building to Replace St. Laurentius Church in Fishtown

What a long, strange trip it’s been. Nearly 8 years after closing it’s doors, St. Laurentius Church still sits vacant and blighted at the corner of Memphis Street and Berks Street in Fishtown.
In 2014, St. Laurentius Parish was merged with Holy Name Parish after the Archdiocese of Philadelphia concluded that St. Laurentius Church was not structurally safe and estimated that nearly $1 million in repairs were needed to secure the building’s spires. The Archdiocese moved to demolish the church, but neighbors and preservationists stepped in and got St. Laurentius designated to the Philadelphia Register of Historic Places, thus preventing the building’s destruction.
In early 2016, a local developer presented a plan to save the historic building. That plan called for 23 apartments within the existing church structure. As the property was then zoned for attached single family homes (RSA-5), the developer needed a variance for the multi-family project. The Zoning Board of Adjustment granted a variance for the 23-unit project in November of 2016.
After the zoning variance was granted, a group that opposed the adaptive reuse project appealed the zoning variance and held the project up in court for years. Over those years, the building continued to decay and thousands of pounds of stones crashed down from the facade onto the street and sidewalk on multiple occasions. The situation was especially concerning due to the fact that St. Laurentius grade school is located next door to the church and the children take recess on the street right next to the crumbling building.
Due to the unsafe conditions caused by the appeal-induced delay in structural repairs, the property was spot rezoned to RM-4 in March of 2019 by Council President Darrell Clarke. The rezoning allowed a multifamily project to proceed by-right and voided the variance appeal.
With RM-4 multifamily zoning in place, many in the community were excited to see St. Laurentius Church saved and for the the 1600 block of East Berks Street to be safe again. Unfortunately, the developer behind the 23-unit plan concluded that the building had deteriorated beyond what was economically feasible to repair during the years of appeals and decided that he could no longer save the structure.
In January of 2020, the Archdiocese of Philadelphia ended up selling the building to a different party for $50,000. No concrete plans were presented by the new owner. Then, in August of 2020, the Philadelphia Historical Commission voted to allow the demolition of the church’s two spires due to structural concerns.
In September of last year, demolition permits were issued for the spires and any other part of the facade that are deemed unsafe during the demolition process. The permits state that the facade on East Berks Street should be maintained or rebuilt if deemed unsafe during demolition.
Since most of the building was approved for demolition, the owner of the property became free to build a large multi-family structure by-right on the 8,597 square foot RM-4 zoned parcel. It looks like it will be much bigger than the original 23-unit plan.
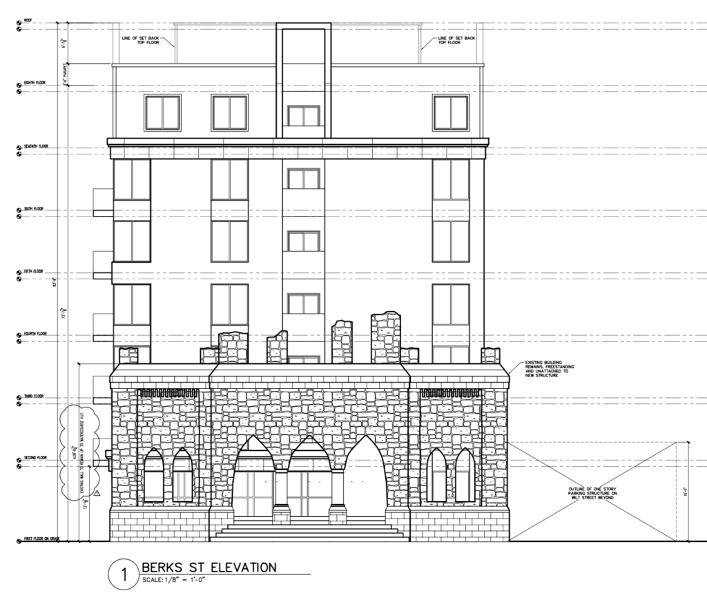
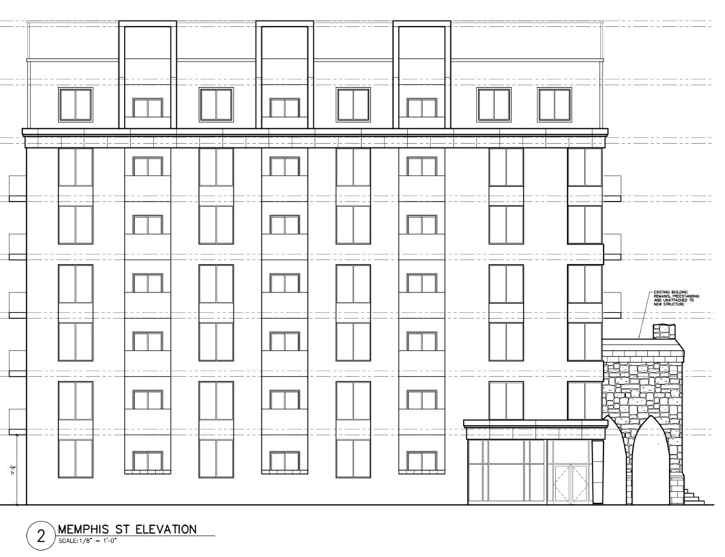
A zoning permit was issued today for an 8-story, 45,052 square foot building with 49 residential units, 17 bicycle stalls, and 15 automated car parking spaces on the site of St. Laurentius.
Although the new structure will likely not reach the height of the church’s spires, it will probably be much more massive and imposing than what was proposed within the existing church years ago. The new project is much more dense and will likely ruffle the feathers of nearby neighbors who were opposed to the adaptive reuse project due to parking concerns.
Aside from the fact that we support residential density and want to see this unsafe situation remediated, we can’t help but wish the original plan was allowed to move forward. Fishtown will lose a landmark when St. Laurentius’ spires are demolished. Philadelphia will lose another historic structure when the wrecking balls hit. The neighborhood will lose a chunk of its charm and character when the church is leveled.
Hopefully, this situation will lead to better outcomes for other historic structures in the city and region. If someone is willing to undertake the challenge of saving a historic structure with a reasonable plan, they should be embraced and not fought. If the original plan was embraced, St. Laurentius would now be activated and would likely stand for another 100+ years. Instead, neighbors will get something else to complain about.
Update: elevation drawings are now available from the approved zoning plan. Barely any of the original structure will be preserved according to these drawings. The plan also notes that the project will utilize the mixed income housing bonus and contribute $658,960 to the housing trust fund.

