81 Short Term Rental Units to Replace Parking Lot in Chinatown

The area between Broad Street, 11th Street, Vine Street, and Race Street in Chinatown is filled with surface parking lots. These parking lots likely get a lot of action when big conferences are happening in the city due to their proximity to the Convention Center. However, we always hoped for a higher and better use for these properties since they are located within core Center City, are blocks from both of our subway lines, and sit within an extremely walkable neighborhood.
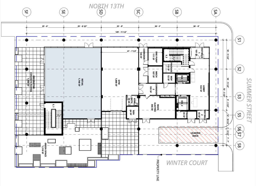
We’re happy to report that one of these surface parking lots looks like it will be going away soon, making way for a 7-story, 59,560 square foot building with 81 residential units. The project will be built on the 11,916 square foot CMX-3 zoned surface parking lot at 225-239 North 13th Street. The project will include 1,748 square feet of commercial space and a gym on the ground floor. There will be a loading dock located on Summer Street.



This will not be your ordinary apartment building. The 81 residential units will be marketed for short term stays. Think of an Airbnb or Sonder type of building, which we have many of throughout the city. This makes a ton of sense to us at this location since it is so close to the Convention Center, Philadelphia’s historic and cultural landmarks, restaurants, museums, and public transit. In the coming years, it may even be down the block from the new (now proposed) 76ers basketball arena, which will host sporting matches, concerts, and other events.
The building will be called The Jaan at City Center. The first floor will be clad in glass while the rest of the facade will be covered in strips of composite wood, which the plans say is more environmentally friendly and weather resistant than traditional wood materials. The building will also sport solar panels and will aim for other energy efficiency benchmarks.






The project can proceed by-right. A zoning permit was issued for the project in November of 2022. The project will appear before the Civic Design Review (CDR) on March 7th for non-binding feedback. No construction permits have been issued to date. However, the CDR presentation indicates that the project will be built utilizing modular construction.
We’re excited to see this surface parking lot eliminated and for this new short term rental building to rise. How do you feel about the project? What kind of business would you like to see open in the commercial space? Would you like to see more of the surrounding parking lots get developed?