94-Unit Building Planned for Melrose Diner Site in South Philly

We’ve mentioned in the past that it feels like Philadelphia’s diners are slowly disappearing. Most famously, back in 2017, Little Pete’s diner in Rittenhouse closed to make way for a 13-story hotel. We also recently told you about plans to replace the Broad Street Diner with a 29-unit, mixed-use building. Today, we have news about another South Philly diner property. However, it doesn’t look like this one will be closing permanently.
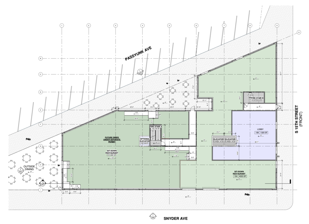
Back in June of last year, a zoning permit was issued for the demolition of the Melrose Diner at 1501-11 Snyder Avenue in South Philadelphia. At that point, we weren’t sure what was planned for the site or if the diner would be closing permanently. Now, we have more information.
A zoning permit was issued yesterday for a 5-story, 55 foot tall building with 94 residential units, a ground floor commercial space, and a roof deck. The zoning documents refer to the commercial space as “future diner.” So, we should be able to safely assume that the Melrose Diner will reopen in the new building.




The development will cover the full triangular block, which entails the diner and the baking facility on the west end of the site. Two outdoor eating areas are noted in the permit. One of them will be located at the tip of the triangle and the other along Passyunk Avenue.
This development can proceed by-right on the 14,610 square foot, CMX-2.5 zoned parcels. The development team is utilizing the green roof bonus and mixed-income housing bonus for additional residential density.
We’ll definitely miss the retro diner building. However, it’s nice to see this many homes planned so close to the Snyder Avenue subway station. We look forward to seeing renderings of the project and hope that they somehow incorporate the metal diner facade.
What do you think about these plans? Would you rather the property stay as is, or are you happy to see plans in place to develop it?