95 Residential Units + Retail Development Breaks Ground Near the Berks El Stop

The area around the Berks El stop has been on fire. Berks station is one of the faster growing Market-Frankford Line stations in ridership numbers. The amount of people using the Berks El stop increased 214% from 2001 to 2016. This does not surprise us much as the Berks station serves Fishtown and Kensington, two neighborhoods in growth stages. Residents are beginning to realize the benefits of living close to public transit and developers are beginning to take notice. We have seen multiple mixed use developments rise along Front St. north of Girard Ave. over the last few years.
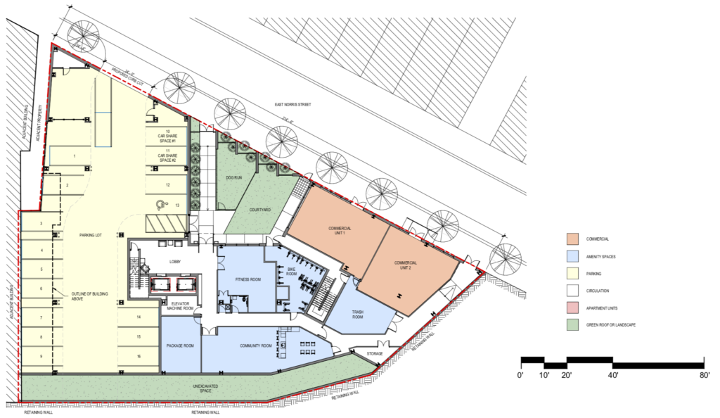
One of the largest projects to date near the Berks El stop broke ground recently at 2110 E. Norris St. The project entails a 6 story, 95 residential unit building with 2 commercial spaces and 21 parking spots. The developers are taking advantage of the lot’s generous CMX-3 zoning which allows them to pursue this project by right. The large square footage and number of residential units in the building required the developers to go through the Civic Design Review (CDR) process, but no zoning variances were needed.

The developers demolished a warehouse that stood on the lot last fall, but left a cinderblock wall along E. Norris St in place. In late February, a new construction permit for the project was issued. Recently, the project team knocked the full wall down, erected construction fencing, and moved heavy machinery on site. Last week, the machines were seen moving dirt around.
We are extremely excited to see this amount of density near public transit. We would have liked to see the building have more of an active street presence. From the renderings, it looks like about two thirds of the facade will be composed of a fenced in courtyard and a garage entrance. However, this project definitely gets a thumbs up from us. It will be interesting to see what kind of commercial tenants lease the available spaces. Hopefully, whatever businesses move in can find a way to cater to the increasing number of commuters walking to and from the train station each day.
