96-Unit, Adaptive Reuse Project Planned at Delaware Ave and Spring Garden

The Delaware Avenue corridor on the Southeast edge of Northern Liberties is a giant construction zone right now. We recently told you about three mega projects that are under construction along this strip: the 470-unit Festival Pier redevelopment, a 466-unit project right across the street from Festival Pier, and a 462-unit development just up the street. Then, there are more than a thousand units under construction and recently completed on the 5 blocks west of the river along Spring Garden Street.
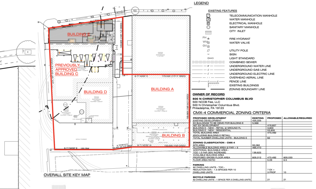
We’ll add another project to the mix. Even though it’s the smallest out of the group we just told you about, it may be our favorite. It involves the historic Philadelphia Warehousing & Cold Storage Company at 500 North Christopher Columbus Boulevard, which was locally designated about two years ago. Back in March of 2021, we told you that the owner of the property was planning a 62-unit new construction building on a non-historic sliver of the property at Front and Spring Garden Street. That project has not broken ground yet, but we now have some even better news to share with you.



Zoning permits were issued for a 96-unit residential conversion on the property yesterday. The zoning notice mentions that the residential units will be located in “Building B” on the site, but no other details have been provided yet. After examining the historic designation documents and the zoning permit for the 62-unit new construction project, it seems like Building B is the structure on the southeast corner of the site at Christopher Columbus Boulevard and Noble Street. Both of these documents label the structure on the southeast corner of the site that has the American Flag painted on it as “Building B,” so we are confident to say that this is where the 96 units will go.
It will be interesting to see the full plans for the project. Since the building is designated historic, all exterior alterations will need to be approved by the Philadelphia Historical Commission. Where will the development team be able to add windows? Will the iconic American Flag mural be affected? Time will tell, but we’re definitely happy to see plans in place for the building. With everything going on in this pocket of the city, we’d really like to see the river side of this site activated.
How do you feel about this project? Would you like to live in a historic cold storage warehouse?