Historic Brewery in East Kensington to Become a Restaurant

It was back in April of 2019 that we told you that the Historic Weisbrod & Hess Brewery on Martha Street had been sold and that a modern addition to the building would be demolished. We weren’t sure what the plan for the property was at that point, but hoped that the structure would be restored soon.
Well, the building still sits in pretty much the same state. Besides the modern addition being demolished, nothing has really changed on the site. However, about 6 months ago, we noticed that the former brewery was sold to a major Philadelphia restaurant group. At that point, we knew a dining establishment was on the horizon, but no permits had been issued to verify our thoughts.
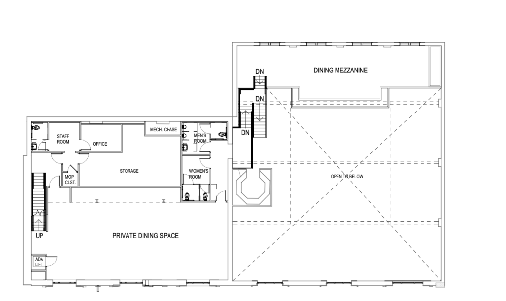
It looks like we now have verification. A zoning permit was issued yesterday to register the use of the property as a sit down restaurant. After digging in a little further, we found that the plans call for a large dining area in the south side of the building, a kitchen area and wine sales area on the north side of the property, and a private dining area on the second level. It even looks like guests will be able to walk through the base of the smokestack, which will be preserved within the restaurant.




While we’re at it, we’ll update you on another development planned right next door. A sliver of the old brewery property that was a vacant piece of land actually stretched out to the corner of York and Martha Street. That sliver was subdivided off from the brewery property and combined with a single family home lot next to it on York Street. The home on York street was recently demolished and permits were issued for a 3-story building with 3 residential units and a ground floor commercial space on the combined parcels.
So, it looks like we’ll be getting a new corner commercial space at York and Martha and an amazing new restaurant space within the old brewery. Add on the 4 new commercial spaces planned a half block away on the York Street circle and East Kensington is going to have a vibrant commercial district. This is all on top of other existing nearby neighborhood staples such as Martha, Philadelphia Brewing Company, Zig Zag BBQ, Monkey Club, and Atlantis.
Are you excited to see the historic brewery finally get a new lease on life. What kind of restaurant would you like to see open in the building? How do you feel about all of the new commercial spaces that will be coming online soon in this section of East Kensington?