New Details on 157-Unit South Philly Project

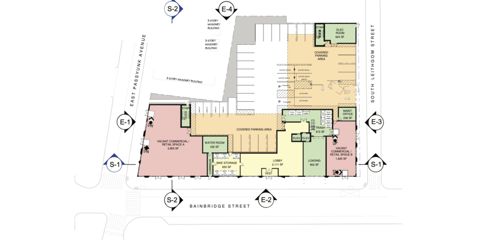
Back in December, we told you that zoning permits were issued for a 7-story building with 157 residential units, 2 ground floor commercial spaces, 35 automobile parking spots, 82 bicycle stalls, and a roof deck at 419 Bainbridge Street. The new building would replace a massive surface parking lot in Queen Village. At that time, we did not have many other details about the project. Now, in anticipation of the development’s Civic Design Review (CDR) hearing, we have more insight to share.



The building’s facade will be constructed of red brick, grey brick, HardiePlank lap siding, and metal panels. A 3,953 square foot commercial space will be located at the corner of Passyunk and Bainbridge and a 1,620 square foot storefront will be located at Leithgow and Bainbridge. The residential lobby entrance will be placed mid building along Bainbridge and the automobile parking entrance will be tucked back on Leithgow Street.
We’re big fans of this project and look forward to it getting built. We think the design of the building is quite attractive and much more interesting than many other new construction plans that we see in Philadelphia. The development will add homes for hundreds of people in Queen Village, which has been experiencing increasing sale and rental prices. These new residents will help fuel businesses in the area on South Street, Fabric Row, and Passyunk Avenue. The additional commercial spaces and elimination of several curb cuts are also a huge positive for the neighborhood.
How do you feel about this project and the design of the building?