Plans for 201-Unit Building Replacing CVS at Broad and Girard Revealed

Back in April, we told you that zoning permits were issued for a 160-unit, mixed-use building on the site of the former CVS on the southwest corner of Broad and Girard. Those permits mentioned that the project would have 2 floors worth of commercial space. It looks like plans have shifted.
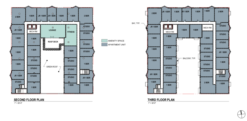
In anticipation of the project’s meeting with the Civic Design Review (CDR), full plans and renderings have been released. The project will now include 201 residential units. The commercial space will only be on one floor, but will amount to 21,760 square feet and will occupy almost all of the ground level. The building will rise 7 stories to a height of 85 feet. There will be 44 underground automobile parking spots and 80 bicycle stalls. The parking garage entrance and exit will be located on the south side of the building along Broad Street. The residential lobby will be located along Girard Avenue. The building will also have a green roof and a roof deck.
The project can proceed by-right on this 26,987 square foot CMX-4 zoned lot at 922 North Broad Street.



The building sports a modern facade made up of black stone, fiber cement panels, and metal panels. Large windows wrap around the ground floor retail space as well as the 2nd floor. We’re wondering if the large 2nd floor windows will be eliminated since there will now be no commercial space on the second level. A light well runs north to south through the southern 2/3 of the building.
We love to see this kind of residential density right next to the Broad Street Line. It’s also great to see so much commercial space included in the plan. We look forward to seeing if one tenant takes all of the space, or if it’s divided into multiple storefronts. In our opinion, either could work.
How do you feel about this project? What kind of business would you like to see open in the retail space? Would you like to see one commercial tenant with a huge space, or multiple businesses open up here?


