Proposal for 400-Unit Conversion of International House in West Philly


More than a year ago, we let you know that the International House at 3701 Chestnut St. in University City was up for sale. The 14-story Brutalist building, constructed between 1968 and 1970, was most recently used as a dorm for international students, some UPenn offices, and the Lightbox Film Center.
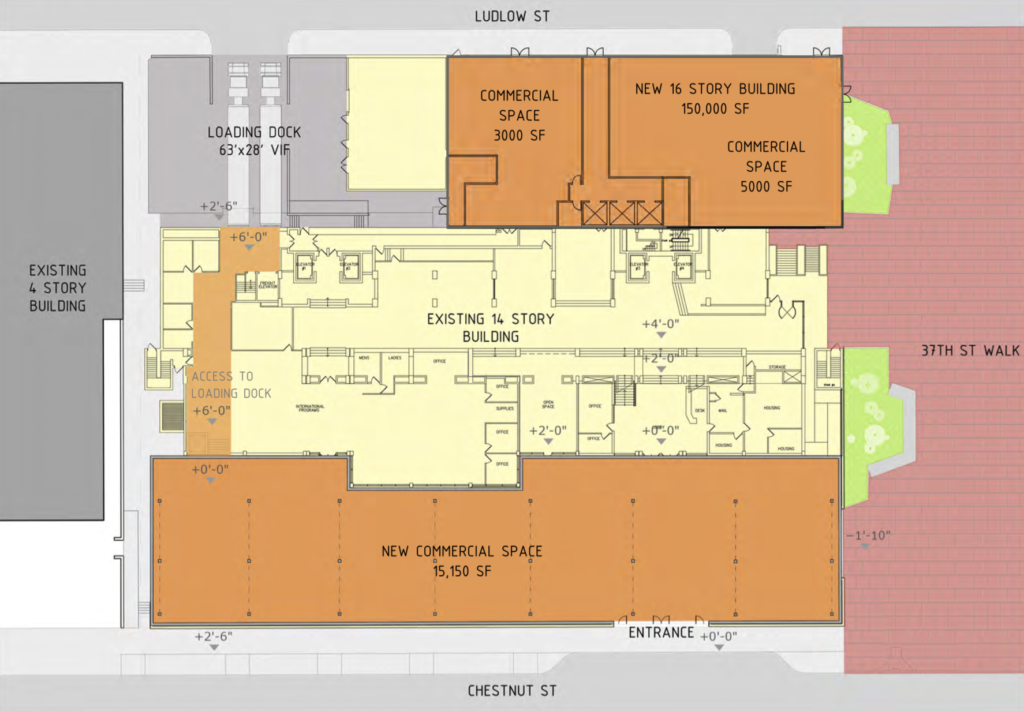
We hadn’t heard much about the property over the last year until a few days ago. CSC Co-Living, a co-living company out of New York City, has secured a $33 million loan for the acquisition and rehabilitation of the International House. CSC Co-Living plans on converting the building into 400 residential units plus commercial space.


Project renderings show a modern tower addition on the northern, Ludlow St. side of the property. Renderings show a grocery store built on the southern, Chestnut St. side of the property where there is currently a plaza. This addition will make the building meet the street better than the currently set back structure.. It seems like the project team tried to blend the design of the grocery store addition with the existing building.
One thing that could derail this plan is that an application for historic designation was filed for this property at the end of August of 2019. The Historical Commission has not reviewed the case yet, but we look forward to hearing the outcome. If this property is designated historic, the Historical Commission will have to approve exterior changes to the property.
How do you feel about the project?
UPDATE 11/16/20 – The International House’s historical nomination is still pending with the Philadelphia Historical Committee. However, it seems as if the Historical Committee will be hearing the owner’s proposal to alter the exterior of the building before the nomination is heard. Alterra Property Group has partnered with CSC Co-living on the project and it looks like the addition on the northern side of the building has increased in height to 215 feet. Additional renderings are now available that include two different design schemes.
How do you feel about the updated plan?






